La selezione corretta del materiale refrattario per ogni applicazione, la progettazione dei rivestimenti refrattari più idonei, dei sagomati speciali, sistemi di ancoraggio, strutture, armature e stampi è un'importante lavoro che richiede molta esperienza. Affidarsi a dei veri professionisti è fondamentale.
Progettiamo e realizziamo "chiavi in mano":
- Forni produzione alluminio:
Forni fusori alluminio, forni attesa, forni di omogeneizzazione, canali di
colate e trasporto alluminio, camere di raffreddamento.
- Forni produzione zinco:
Vasche di zincatura con riscaldamento a cappa o ad intercapedine.
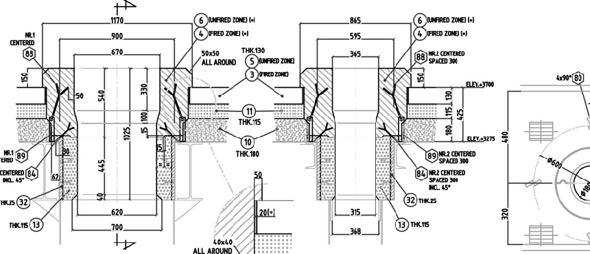
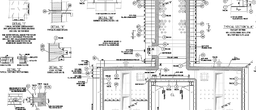
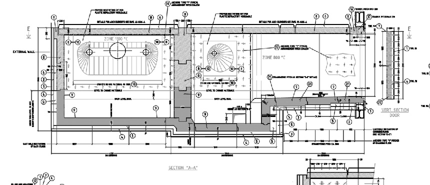
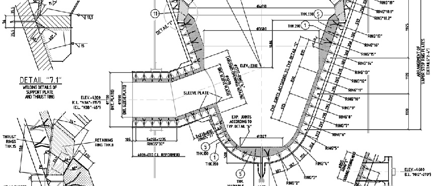
- Forni settore siderurgico:
Forni da riscaldo, forni per trattamento termico, forni per ricottura e distensione,
forni a campana, a rulli, a pozzo; realizzati nelle varianti a carro mobile,
a suola fissa e rotante; alimentati a metano, gpl, gasolio o riscaldo elettrico;
con bruciatori a fiamma libera ad alta velocità, a fiamma piatta, radianti,
autorigenerativi, oppure con tubo radiante.
Il nostro punto di forza è l'utilizzo di logiche di comando a PLC, che sostituiscono i più datati termoregolatori, e ci permettono di ottimizzare tutti i cicli di lavoro, riducendo sensibilmente il consumo di combustibile e quindi il costo finale dei trattamenti. Gestire i bruciatori in modalità "pulsante" e in modulazione continua, ci permette di adattare il controllo al singolo ciclo da effettuare. Abbiamo, inoltre, la possibilità di fornire interfacce personalizzate mediante lo sviluppo di supervisioni, basate su software comuni, oppure su software sviluppati dalla nostra azienda.